
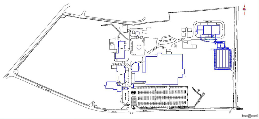
Site Plan

The information provided herein was obtained from sources believed reliable; however, we make no guarantees, warranties, or representations as to the completeness or accuracy thereof. The presentation of this property is submitted subject to errors, omissions, change of price or conditions, prior sale or lease, or withdrawal without notice. © Copyright 2024 CDDPR